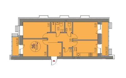
Квартира 2-х комнатная №21-47.51 кв.м. 1 подъезд

  • БС-1 3-10 2Г
  • БС-1 3-10 эт
  • нет в наличии
  • Этаж 4
  • ЖК Изумрудный

Описание

В этой двухкомнатной квартире №21 на 47,51 кв.м. все перегородки кирпичные, на полу цементная стяжка. Проведена вся внутренняя разводка электроэнергии, с установкой подрозетников, выключателей и розеток. А также установлены распределительные устройства с автоматами. Сделана вся разводка с трубами и счетчиками для горячего и холодного водоснабжения, а также для канализации. Стены оштукатурены под обои или покраску.

Рассчитать ипотеку данного объекта


Вам могут понравиться

Забронировать

Квартира 2-х комнатная №21-47.51 кв.м. 1 подъезд



    Я даю согласие на сбор и обработку моих персональных данных с использованием систем веб-аналитики вроде Яндекс Метрика, Ливинтернет или гугл аналитика (если применяется). Политика в отношении обработки персональных данных
    Закрыть
    © 2006 - 2026 Девелоперская компания Радиант  ·  radiant-home.ru — официальный сайт
    Поиск по сайту

    Например,

    Закрыть